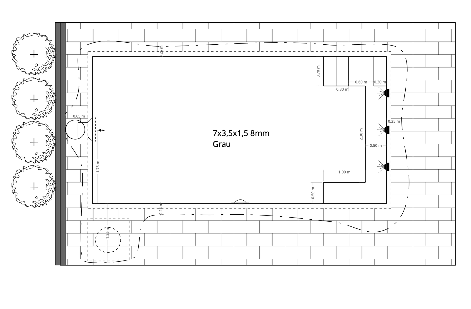
Pool Inspirationen

 

Hier finden ein paar Pool Inspirationen